DV 21-31 №683

Цена строительства от 12 000 000 ₽* * Стоимость не является окончательной
Заявка на консультацию
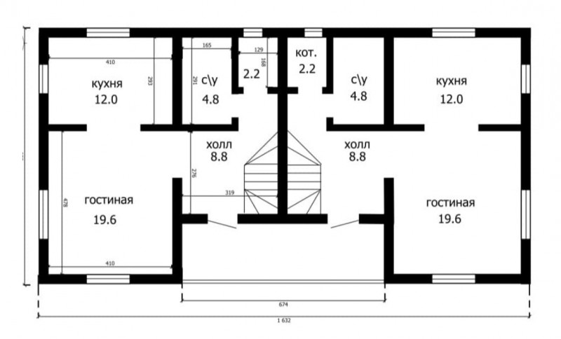
  • Общая площадь 200 м2
  • Длина 16.32 м
  • Ширина 8.55 м
  • Материал стен Газобетон/пеноблок
  • Количество этажей 2
  • Подвал Нет
  • Мансарда без мансарды
  • Гараж Нет
  • Терраса Нет
  • Проживание Круглогодичное
  • Количество комнат 8
  • Количество спален 6
  • Количество санузлов 4
  • Вид проекта дом
  • Застройщик Домастрой
  • Архитектурный стиль Классический
  • Отделка фасада Комбинированная
  • Крыша Вальмовая
  • Можно купить домокомплект Нет
  • Модульный тип строения Нет
Планировки
Описание проекта

Двухэтажный дом на 2 хозяев. Обе части дома изолированы друг от друга, предусмотрен отдельный вход. Внешняя отделка из фасадной штукатурки и кирпича.

Выбор местоположения

Задать вопрос / написать нам

E-mail: domgis@mail.ru

Мы свяжемся с Вами в течение дня.

Тех. поддержка
Предмет обращения:
Тукущая страница

Мы свяжемся с Вами в течение дня.

Обратный звонок
Обратный звонок
Выберите ваш город
Пожаловаться

Объявление опубликовано.
Изменения сохранены

Период публикации - бессрочный, при условии подтверждения актуальности каждые 50 дней. Уведомления будут отправляться на Вашу электронную почту.

Выберите причину снятия с публикации

Снятые с публикации объявления не участвуют в поиске и недоступны для подробного просмотра.

Для повторной публикации нажмите «Вернуть в публикацию»